PROJEKTE
.
BÜRO
.
LEISTUNGEN
.
EINBLICKE
JOURNAL
.
KARRIERE
.
KONTAKT
INFOS
PROJEKT
DETAILS
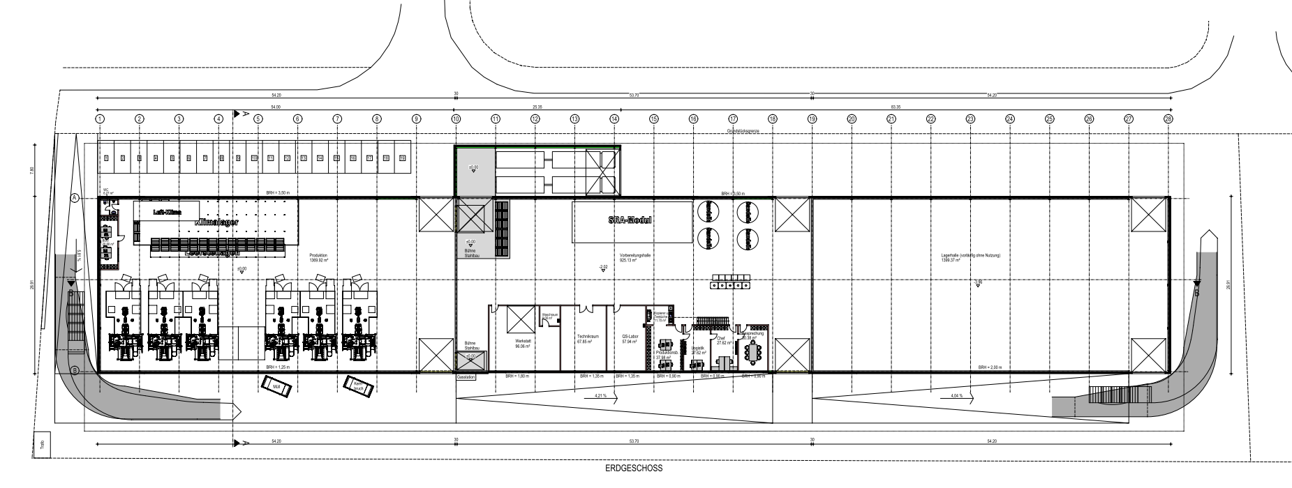
Produktionshalle Hadaller
Neubau einer Produktionshalle in Ergoldsbach
cof
Galerie
Projektzeitraum
2017 – 2018
Auftraggeber
Hadaller GmbH
Bruttogrundfläche / Wohnfläche (WF)
4.550 m² gewerbliche Nutzfläche
Bruttorauminhalt
41.000 m³
ZUR
ÜCK
ZUR
ÜBER
SICHT